Bedrijfsunit te huur
De Langkamp 3-17 in Wijk bij Duurstede
De Langkamp 3-17 in Wijk bij Duurstede
Deze duurzame bedrijfsunit heeft zonnepanelen, ventilatie met warmteterugwinning en een lucht/lucht warmtepomp voor verwarmen en koelen.
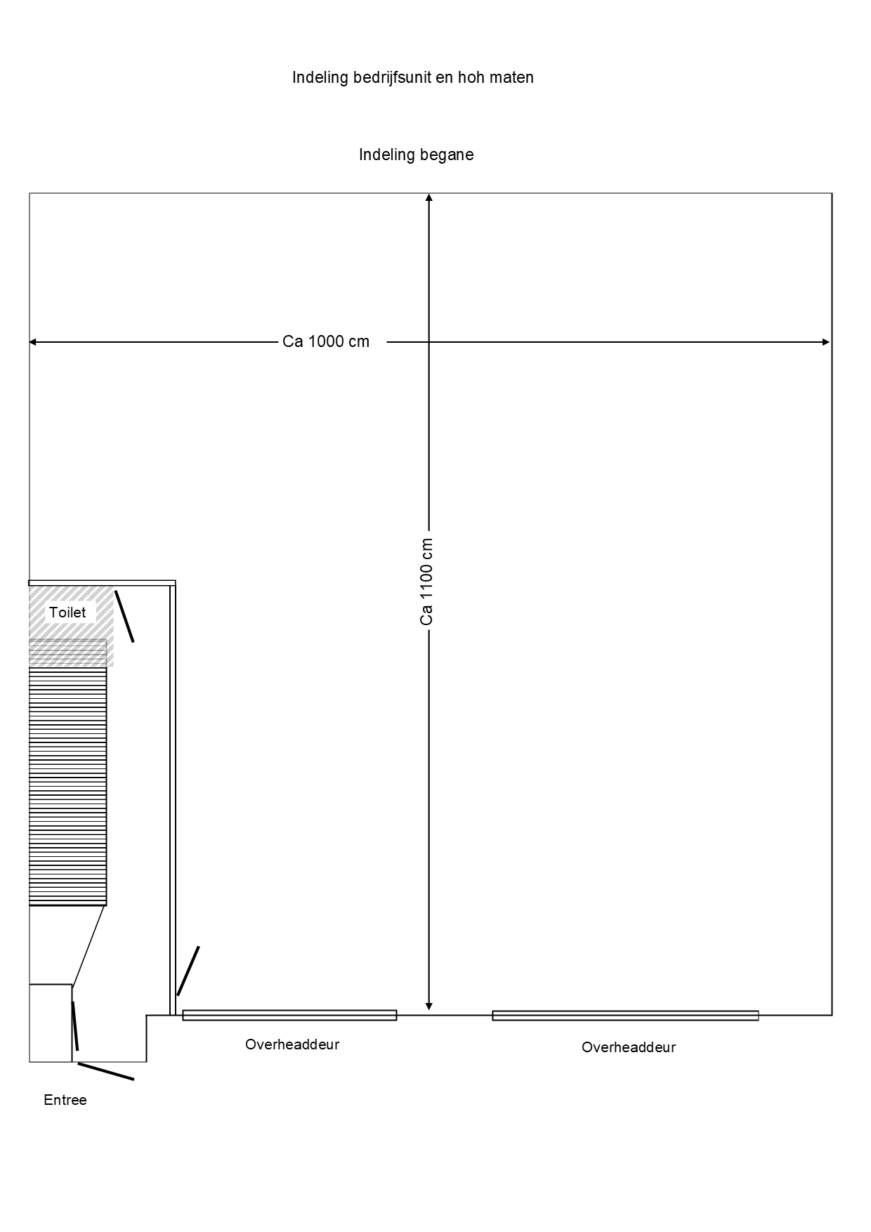
Begane grond:
Deze unit heeft twee overheaddeuren en een loopdeur op de begane grond. Achter de overheaddeuren is momenteel een kozijn met loopdeur en glas geplaatst waardoor de begane grond ook te gebruiken is als winkel, kantoor en/of werkplaats.
Aan de voorzijde is een personenentree.
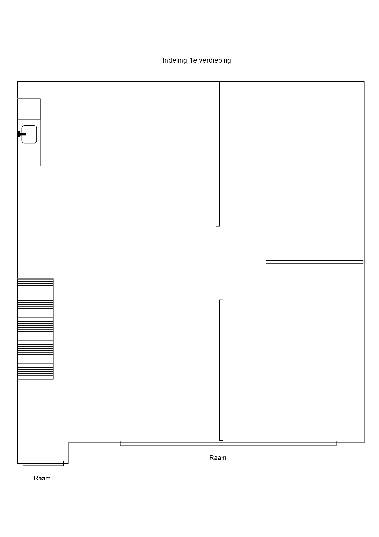
Eerste verdieping:
Deze verdieping is voorzien van een pantry met inbouwkoelkast. Riante raampartijen geven voldoende daglicht. Deze unit is voorzien van zonnepanelen.
Voor de bedrijfsunit is er parkeergelegenheid, tevens kan men gratis parkeren langs de openbare weg en in de directe omgeving.
De bedrijfsunit ligt vooraan het representatieve bedrijvenpark Broekweg. Bedrijventerrein “Broekweg" is gelegen op ongeveer 25 kilometer van Utrecht. De bereikbaarheid is prima middels de rijksweg A12 en vervolgens de N229.
Het betreffende oppervlak is ca. 220 m² bruto vloeroppervlak (BVO), als volgt verdeeld:
Ca. 110 m² bedrijfsruimte op de begane grond;
Ca. 110 m² kantoorruimte op de 1e verdieping.
Kenmerken
-
Aangeboden als: Huur
-
Oppervlakte: ca 220 m²
-
Bouwjaar: 2004
-
Gebruiksdoel: Bedrijfsunit
-
Voorzieningen: Betonvloer, toilet, pantry, en te openen ramen
-
Bedrijventerrein: Broekweg
-
Buurt: Bedrijventerrein Broekweg & Langshaven
Het object wordt opgeleverd in de huidige staat, inclusief:
- luchtwarmtepomp voor verwarmen en koelen
- ventilatie met warmteterugwinning (WTW)
- zonnepanelen;
- ISRA punt;
- aansluitingen water en elektra;
- overheaddeur (2x);
- systeemplafond voorzien van led verlichting;
- data- en elektra-aansluitingen;
- Gekoppeld rookalarm;
- pantry;
- toilet;
- brandslanghaspel;
- noodverlichting;
- te openen ramen;
- aluminiumkozijnen voorzien van HR++ ramen;
Betalingen: Huur en servicekosten te vermeerderen met BTW per maand vooruit.
Huurtermijn: 5 jaar met een verlengingsperiode van 5 jaar, kortere huurperioden zijn bespreekbaar.
Opzegtermijn: Uiterlijk 12 maanden voor het aflopen van een huurtermijn.
Huurprijsaanpassing: Jaarlijks, voor het eerst één jaar na huuringangsdatum, op basis van het consumptieprijsindexcijfer voor alle huishoudens (CPI, als vastgesteld door het CBS, met als basisjaar 2015).
Zekerheidsstelling: Afhankelijk van de financiële gegoedheid van de kandidaat een bankgarantie ter grootte van minimaal drie maanden huur inclusief servicekosten te vermeerderen met de wettelijk verschuldigde BTW.
Overige condities: Gebaseerd op het model winkelruimte en andere bedrijfsruimte in de zin van artikel 7:290 BW, zoals is vastgesteld door de Raad voor Onroerende Zaken (ROZ) 2 oktober 2012, zoals gehanteerd door de Nederlandse Vereniging van Makelaars (NVM), met de bijbehorende algemene bepalingen.
Bijzonderheden: Deze informatie wordt verstrekt onder het uitdrukkelijke voorbehoud van onvoorwaardelijke goedkeuring door verhuurder c.q. eigenaar.

























